

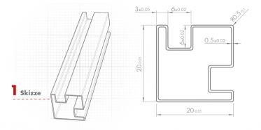
Unsere Ingenieur:innen erstellen anhand der Skizze ein CAD 3D-Modell mit Freigabe-Zeichnung inkl. der gewünschten Bemaßungen des Entwurfsmusters.

Mit der Zeichnung als Grundlage wird das dafür passende Vormaterial ausgewählt.

In einer Versuchsreihe werden die notwendigen Ziehfolgen ermittelt.

Wir begleiten Sie von der Idee bis zur ausgereiften Produktlösung.